您好,欢迎访问上海冠仪自动化科技有限公司官网!
网站地图(
百度
/
谷歌
)
加入收藏
联系我们
13636639908
021-51698868
网站首页
关于我们
公司简介
企业文化
企业理念
产品中心
工字钢电缆滑车
钢体集电器
刚体滑触线
安全滑触线
母线槽
电缆滑线
巡检滑触线
集电器系列
电缆拖令滑车
AGV智能充电站
滑触线电源指示灯
接地靴
新闻中心
行业动态
公司动态
常见问题
厂房设备
销售网络
联系我们
在线留言
您的位置:
首页
>
产品中心
>
安全滑触线
产品中心
工字钢电缆滑车
钢体集电器
刚体滑触线
安全滑触线
母线槽
电缆滑线
巡检滑触线
集电器系列
电缆拖令滑车
AGV智能充电站
滑触线电源指示灯
接地靴
推荐产品
暂无推荐内容...
上海冠仪自动化科技有限公司
地址:上海市宝山区蕴川路5475号
电话:021-51698868
咨询热线
021-51698868
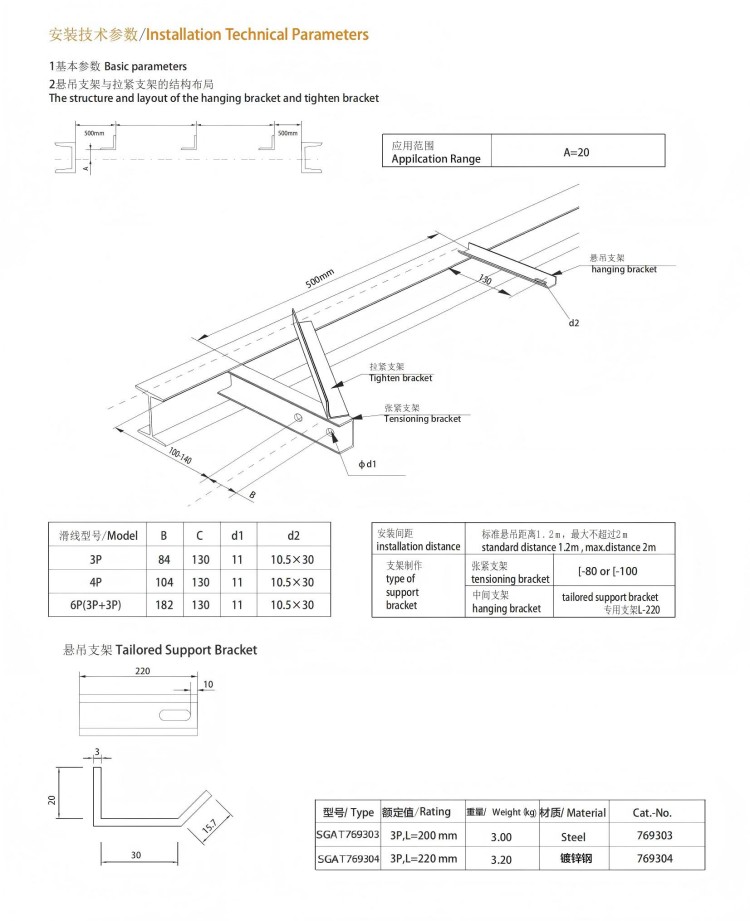
无接缝多级滑触线
发布时间:2025-11-04
人气:
13
分享到:
上一篇:
自动化输送滑触线
下一篇:
单极组合式安全滑触线
推荐资讯
暂无推荐内容...
Copyright © 2018 上海冠仪自动化科技有限公司 地址:上海市宝山区蕴川路5475号 备案号:
沪ICP备2023012211号-9
技术支持::
华夕网络
|
统计代码放置
021-51698868
微信二维码